
RIVER WALK

RETREAT ENTRY

RETREAT TOWER

LOBBY

AUDITORIUM

SITE PLAN

SITE ANALYSIS

BUILDING CONCEPT

FIRST FLOOR PLAN

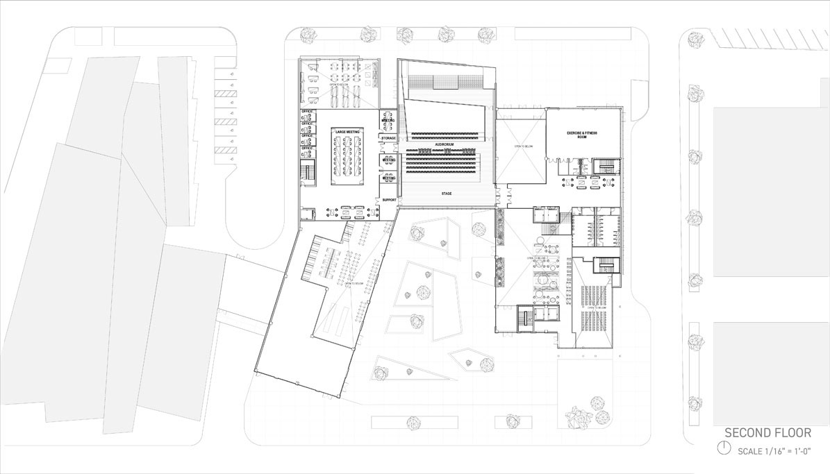
SECOND FLOOR PLAN

THIRD FLOOR PLAN

FOURTH FLOOR PLAN

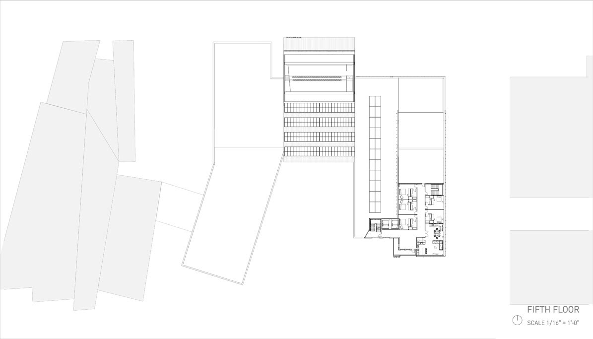
FIFTH FLOOR PLAN

AUDITORIUM SECTION

The Corporate Conference Center and Retreat aims to create a direct connection between Springdale’s downtown business district and the new ecological district. The campus design aims to promote interaction and collaboration while providing a welcoming and comfortable atmosphere that reflects the nature around it. The center is designed to provide all the necessary spaces and amenities for its visitors while ensuring a carefree stay in the corporate retreat.
RIVER WALK
RETREAT ENTRY
RETREAT TOWER
LOBBY
AUDITORIUM
SITE PLAN
SITE ANALYSIS
BUILDING CONCEPT
AUDITORIUM SECTION